10284
26년2분기준공/양평역 초초초역세권/신축상가/선임대
월세
전용면적 132.23㎡ 공급면적 231.40㎡
경기 양평군 양평읍 양근리
월세 5,000만/250만
| 매물 종류 | 상가/사무실 | 가격 | 월세 5,000만/250만 |
|---|---|---|---|
| 위치 | 경기 양평군 양평읍 양근리 | 면적 |
전용 132.23㎡ 공급 231.40㎡ |
| 화장실타입 | 입주가능일 | 26년 4월 예정 | |
| 방향 | 남 | 24시간 개방여부 | |
| 해당층/전체층 |
층일부 2층 /
1층
|
주차대수 | 47대 |
| 사용승인일 | 2020-07-06 |
━━━━━━━━━매물특징━━━━━━━━━━
✔️ 양평역 도보 10초거리 초초초역세권
✔️ 1층 통 필로티구조 넉넉한 주차공간 (47대 예정)
✔️ 2층상가 부분임대 (아래 정보 확인)
✔️ 26년도 4~5월 준공 예정
✔️ 양평역 초역세권으로 빠른시일내에 계약이 모두
완료될 것으로 예상됩니다.
★★ 모든 업종 환영 ★★
━━━━━━━━━매물정보━━━━━━━━━━
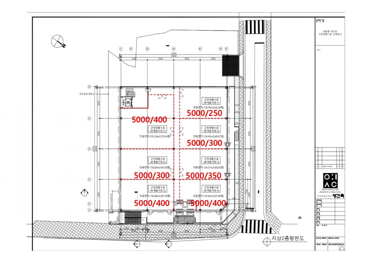
★1층 - 필로티 주차공간(47대 주차)★
★2층 - 상가 7개 월세 (37평~70평)★
1. 42.3평 - 보증금 5000만 / 월세 250만
2. 40.7평 - 보증금 5000만 / 월세 300만
3. 45.6평 - 보증금 5000만 / 월세 300만
4. 40.7평 - 보증금 5000만 / 월세 350만
5. 37.4평 - 보증금 5000만 / 월세 400만
6. 47.4평 - 보증금 5000만 / 월세 400만
7. 70.5평 - 보증금 5000만 / 월세 400만
☆ 보증금 / 월세 조정, 건물 내 상가 위치 등 자세한
문의사항 전화주세요^^
━━━━━━━━━━━━━━━━━━━━━━━
★ 대표 : 노 지 수 공인중개사
☏ 똑똑부동산 : 010-3946-9915 / 031-773-0566
◆ 홈페이지주소 : www.똑똑부동산.com
◆ 홈페이지에 전속물건 다량 보유중
━━━━━━━━━━━━━━━━━━━━━━━
- 은행
- 마트
- 약국
- 주유소
- 카페
- 편의점
- 유치원
- 학교
건축물 대장
| 건물명 | 총 세대수 | 0세대 | |
|---|---|---|---|
| 사용승인일 | 20200706 | 대지면적 | 2,399㎡ |
| 건물면적 | 878.11㎡ (건폐율 : 36.6%) | ||
| 연면적 | 875.34㎡ (용적율 : 36.49%) | ||
| 층수 | (지상) 1층 (지하) 0층 (높이) 17m | ||
| 엘리베이터 | (승객용) 0대 (비상용) 0대 | ||
| 주차대수 | (옥내) 자주식0대,
기계식0대 (옥외) 자주식9대, 기계식0대 |
||
| 주용도 | 문화및집회시설 | 부용도 | 문화및집회시설 |
| 구조 | 일반철골구조 | ||
층별 개요
| 층 | 면적 | 주용도 | 부용도 |
|---|---|---|---|
| 1층 | 379.34㎡ | 기타전시장 | 전시장(견본주택) |
| 1층 | 496㎡ | 기타전시장 | 전시장(견본주택) |
| 면적 | 567㎡ | 지목 | 대 |
|---|---|---|---|
| 용도지역 | 일반상업지역 | ||
| 토지이용상황 | 210 | ||
| 지형높이 | 평지 | 지형형상 | 사다리형 |
| 도로접면 | 광대로한면 | ||
| 공시지가 | 315만(/㎡) (2022년) | ||


